Da Vinci|高級賃貸

Da Vinci|高級賃貸

home

ホーム

物件検索

物件検索

home

会社概要

当サイトへのお問合せ

当サイトへの
お問合せ

前の画面
へ戻る

※写真・図が現況と異なる場合は現況を優先させていただきます。

パークアクシス品川天王洲アイル 1101 のお問い合わせは、住まいの情報館まで

パークアクシス品川天王洲アイル 1101 の賃料・その他費用について

賃料 27.1万円
管理費 20,000円/月
共益費
雑費
敷金 1ヶ月
礼金 -
敷引 -
鍵交換代等
保証金 -
保証金償却
その他一時金
ランニングコスト

パークアクシス品川天王洲アイル 1101 の物件概要

物件種別 マンション
物件名/部屋番号 パークアクシス品川天王洲アイル 1101
所在地 東京都品川区東品川3丁目32-27
交通 東京臨海高速鉄道りんかい線 天王洲アイル駅 徒歩 7分


築年月 2025年03月
建物構造 鉄筋コン
建物階建/所在階 11階/14階建
総戸数 -
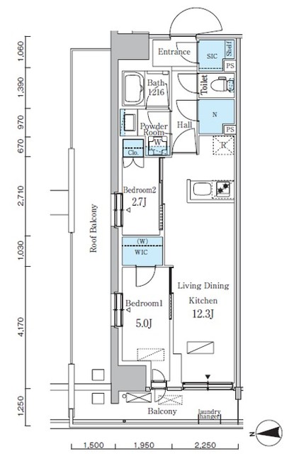
間取り 2LDK
間取り内訳 2LDK 開口向き西
専有面積 50.4㎡
バルコニー
主要採光面
駐車場 -
バイク置場
駐輪場
特記事項
設備 エアコン/室内洗濯機置場/バス・トイレ別/追焚機能/浴室乾燥機/システムキッチン/バルコニー/フローリング/ウォークインクローゼット/オートロック/エレベーター/宅配ボックス/バイク置き場あり/BSアンテナ/CSアンテナ/CATV/管理人(日勤)
温泉
リフォーム履歴
リノベーション履歴
周辺環境 -
備考 賃貸戸数:278戸/フリーレント2ヶ月。短期解約違約金有/保証会社利用必須(保証会社利用以外は敷1積増)/駐輪場月額33、定期借家[契約期間]24ヶ月
現況 空室
入居日 即時
取引態様 貸主
賃貸区分 マンション
契約期間
更新料 なし
入居条件 [フリーレント] 2ヶ月
ペット相談/楽器相談(ピアノ可)/事務所不可
フリーレント
保険等加入
管理方式
賃貸保証
設備保証
クレジットカード決済
一括型共同住宅
物件番号 271840
情報更新日 2025-10-01
公開満了日

パークアクシス品川天王洲アイル の地図

東京都品川区東品川3丁目32-27 周辺の地図

※地図の場所は、物件の住所情報を基に自動表示しております。実際の物件所在地とは異なる場合がございますので、正確な場所については不動産会社までお問い合わせください。

パークアクシス品川天王洲アイル のお問い合わせは、住まいの情報館まで

賃貸物件のご相談は住まいの情報館へ。IT重説も可能です。土・日営業。

担当店舗 株式会社ダーウィンプラス
Tel/Fax Tel: 03-5565-7771 / Fax: 03-5148-7771
所在地 〒104-0061 東京都中央区銀座7丁目15-5
アクセス 東京メトロ日比谷線 / 東銀座駅 徒歩5分
営業時間 10:00~19:00 / 水曜定休
免許番号 国土交通大臣免許(2)第8738号
所属団体名 全日本不動産協会

パークアクシス品川天王洲アイル の他の空室

パークアクシス品川天王洲アイル 606

パークアクシス品川天王洲アイル 606

1LDK / 34.72㎡

賃料17.6万円

管理費 12,000円/月

敷金 1ヶ月 / 礼金 -

お部屋の詳細を見る

この部屋でお問い合わせ

パークアクシス品川天王洲アイル 1006

パークアクシス品川天王洲アイル 1006

1LDK / 34.72㎡

賃料18.4万円

管理費 12,000円/月

敷金 1ヶ月 / 礼金 -

お部屋の詳細を見る

この部屋でお問い合わせ

パークアクシス品川天王洲アイル 608

パークアクシス品川天王洲アイル 608

2LDK / 45.57㎡

賃料22.5万円

管理費 20,000円/月

敷金 1ヶ月 / 礼金 -

お部屋の詳細を見る

この部屋でお問い合わせ

パークアクシス品川天王洲アイル 612

パークアクシス品川天王洲アイル 612

2LDK / 45.57㎡

賃料23.3万円

管理費 20,000円/月

敷金 1ヶ月 / 礼金 -

お部屋の詳細を見る

この部屋でお問い合わせ

パークアクシス品川天王洲アイル 1012

パークアクシス品川天王洲アイル 1012

2LDK / 45.57㎡

賃料24万円

管理費 20,000円/月

敷金 1ヶ月 / 礼金 -

お部屋の詳細を見る

この部屋でお問い合わせ

パークアクシス品川天王洲アイル 1008

パークアクシス品川天王洲アイル 1008

2LDK / 45.57㎡

賃料23.5万円

管理費 20,000円/月

敷金 1ヶ月 / 礼金 -

お部屋の詳細を見る

この部屋でお問い合わせ

パークアクシス品川天王洲アイル 1303

パークアクシス品川天王洲アイル 1303

2LDK / 45.57㎡

賃料24.4万円

管理費 20,000円/月

敷金 1ヶ月 / 礼金 -

お部屋の詳細を見る

この部屋でお問い合わせ

パークアクシス品川天王洲アイル 304

パークアクシス品川天王洲アイル 304

2LDK / 50.4㎡

賃料23.9万円

管理費 20,000円/月

敷金 1ヶ月 / 礼金 -

お部屋の詳細を見る

この部屋でお問い合わせ

パークアクシス品川天王洲アイル 603

パークアクシス品川天王洲アイル 603

2LDK / 50.4㎡

賃料25万円

管理費 20,000円/月

敷金 1ヶ月 / 礼金 -

お部屋の詳細を見る

この部屋でお問い合わせ

パークアクシス品川天王洲アイル 604

パークアクシス品川天王洲アイル 604

2LDK / 50.4㎡

賃料24.2万円

管理費 20,000円/月

敷金 1ヶ月 / 礼金 -

お部屋の詳細を見る

この部屋でお問い合わせ

パークアクシス品川天王洲アイル 1002

パークアクシス品川天王洲アイル 1002

2LDK / 50.4㎡

賃料26.4万円

管理費 20,000円/月

敷金 1ヶ月 / 礼金 -

お部屋の詳細を見る

この部屋でお問い合わせ

パークアクシス品川天王洲アイル 1003

パークアクシス品川天王洲アイル 1003

2LDK / 50.4㎡

賃料26.4万円

管理費 20,000円/月

敷金 1ヶ月 / 礼金 -

お部屋の詳細を見る

この部屋でお問い合わせ

パークアクシス品川天王洲アイル 1004

パークアクシス品川天王洲アイル 1004

2LDK / 50.4㎡

賃料25.9万円

管理費 20,000円/月

敷金 1ヶ月 / 礼金 -

お部屋の詳細を見る

この部屋でお問い合わせ

パークアクシス品川天王洲アイル 721

パークアクシス品川天王洲アイル 721

2LDK / 58.24㎡

賃料27.8万円

管理費 20,000円/月

敷金 1ヶ月 / 礼金 -

お部屋の詳細を見る

この部屋でお問い合わせ

パークアクシス品川天王洲アイル 1001

パークアクシス品川天王洲アイル 1001

2LDK / 62㎡

賃料30.5万円

管理費 20,000円/月

敷金 1ヶ月 / 礼金 -

お部屋の詳細を見る

この部屋でお問い合わせ

パークアクシス品川天王洲アイル 310

パークアクシス品川天王洲アイル 310

2DK / 45.57㎡

賃料22万円

管理費 15,000円/月

敷金 1ヶ月 / 礼金 -

お部屋の詳細を見る

この部屋でお問い合わせ

パークアクシス品川天王洲アイル 607

パークアクシス品川天王洲アイル 607

2LDK / 45.57㎡

賃料22.2万円

管理費 20,000円/月

敷金 1ヶ月 / 礼金 -

お部屋の詳細を見る

この部屋でお問い合わせ

パークアクシス品川天王洲アイル 610

パークアクシス品川天王洲アイル 610

2DK / 45.57㎡

賃料22.4万円

管理費 15,000円/月

敷金 1ヶ月 / 礼金 -

お部屋の詳細を見る

この部屋でお問い合わせ

パークアクシス品川天王洲アイル 613

パークアクシス品川天王洲アイル 613

2DK / 45.57㎡

賃料22.4万円

管理費 15,000円/月

敷金 1ヶ月 / 礼金 -

お部屋の詳細を見る

この部屋でお問い合わせ

パークアクシス品川天王洲アイル 1013

パークアクシス品川天王洲アイル 1013

2DK / 45.57㎡

賃料23.2万円

管理費 15,000円/月

敷金 1ヶ月 / 礼金 -

お部屋の詳細を見る

この部屋でお問い合わせ

パークアクシス品川天王洲アイル 1010

パークアクシス品川天王洲アイル 1010

2DK / 45.57㎡

賃料22.8万円

管理費 15,000円/月

敷金 1ヶ月 / 礼金 -

お部屋の詳細を見る

この部屋でお問い合わせ

パークアクシス品川天王洲アイル 1007

パークアクシス品川天王洲アイル 1007

2LDK / 45.57㎡

賃料23.2万円

管理費 20,000円/月

敷金 1ヶ月 / 礼金 -

お部屋の詳細を見る

この部屋でお問い合わせ

パークアクシス品川天王洲アイル 309

パークアクシス品川天王洲アイル 309

2LDK / 60.53㎡

賃料27.7万円

管理費 20,000円/月

敷金 1ヶ月 / 礼金 -

お部屋の詳細を見る

この部屋でお問い合わせ

パークアクシス品川天王洲アイル 609

パークアクシス品川天王洲アイル 609

2LDK / 60.53㎡

賃料28万円

管理費 20,000円/月

敷金 1ヶ月 / 礼金 -

お部屋の詳細を見る

この部屋でお問い合わせ

パークアクシス品川天王洲アイル 806

パークアクシス品川天王洲アイル 806

1LDK / 34.72㎡

賃料17.8万円

管理費 12,000円/月

敷金 1ヶ月 / 礼金 -

お部屋の詳細を見る

この部屋でお問い合わせ

パークアクシス品川天王洲アイル 1203

パークアクシス品川天王洲アイル 1203

1LDK / 34.72㎡

賃料18.6万円

管理費 12,000円/月

敷金 1ヶ月 / 礼金 -

お部屋の詳細を見る

この部屋でお問い合わせ

パークアクシス品川天王洲アイル 1202

パークアクシス品川天王洲アイル 1202

1LDK / 38.4㎡

賃料20.3万円

管理費 12,000円/月

敷金 1ヶ月 / 礼金 -

お部屋の詳細を見る

この部屋でお問い合わせ

パークアクシス品川天王洲アイル 807

パークアクシス品川天王洲アイル 807

2LDK / 45.57㎡

賃料22.9万円

管理費 20,000円/月

敷金 1ヶ月 / 礼金 -

お部屋の詳細を見る

この部屋でお問い合わせ

パークアクシス品川天王洲アイル 811

パークアクシス品川天王洲アイル 811

2LDK / 45.57㎡

賃料23万円

管理費 20,000円/月

敷金 1ヶ月 / 礼金 -

お部屋の詳細を見る

この部屋でお問い合わせ

パークアクシス品川天王洲アイル 1204

パークアクシス品川天王洲アイル 1204

2LDK / 45.57㎡

賃料23.6万円

管理費 20,000円/月

敷金 1ヶ月 / 礼金 -

お部屋の詳細を見る

この部屋でお問い合わせ

パークアクシス品川天王洲アイル 810

パークアクシス品川天王洲アイル 810

2DK / 45.57㎡

賃料22.6万円

管理費 15,000円/月

敷金 1ヶ月 / 礼金 -

お部屋の詳細を見る

この部屋でお問い合わせ

パークアクシス品川天王洲アイル 813

パークアクシス品川天王洲アイル 813

2DK / 45.57㎡

賃料22.7万円

管理費 15,000円/月

敷金 1ヶ月 / 礼金 -

お部屋の詳細を見る

この部屋でお問い合わせ

パークアクシス品川天王洲アイル 1208

パークアクシス品川天王洲アイル 1208

2LDK / 45.57㎡

賃料23.7万円

管理費 20,000円/月

敷金 1ヶ月 / 礼金 -

お部屋の詳細を見る

この部屋でお問い合わせ

パークアクシス品川天王洲アイル 808

パークアクシス品川天王洲アイル 808

2LDK / 45.57㎡

賃料23万円

管理費 20,000円/月

敷金 1ヶ月 / 礼金 -

お部屋の詳細を見る

この部屋でお問い合わせ

パークアクシス品川天王洲アイル 812

パークアクシス品川天王洲アイル 812

2LDK / 45.57㎡

賃料23.5万円

管理費 20,000円/月

敷金 1ヶ月 / 礼金 -

お部屋の詳細を見る

この部屋でお問い合わせ

パークアクシス品川天王洲アイル 1207

パークアクシス品川天王洲アイル 1207

2DK / 45.57㎡

賃料23.5万円

管理費 15,000円/月

敷金 1ヶ月 / 礼金 -

お部屋の詳細を見る

この部屋でお問い合わせ

パークアクシス品川天王洲アイル 1205

パークアクシス品川天王洲アイル 1205

2LDK / 45.57㎡

賃料24万円

管理費 20,000円/月

敷金 1ヶ月 / 礼金 -

お部屋の詳細を見る

この部屋でお問い合わせ

パークアクシス品川天王洲アイル 1209

パークアクシス品川天王洲アイル 1209

2LDK / 45.57㎡

賃料24.2万円

管理費 20,000円/月

敷金 1ヶ月 / 礼金 -

お部屋の詳細を見る

この部屋でお問い合わせ

パークアクシス品川天王洲アイル 1210

パークアクシス品川天王洲アイル 1210

2DK / 45.57㎡

賃料23.5万円

管理費 15,000円/月

敷金 1ヶ月 / 礼金 -

お部屋の詳細を見る

この部屋でお問い合わせ

パークアクシス品川天王洲アイル 802

パークアクシス品川天王洲アイル 802

2LDK / 50.4㎡

賃料25.4万円

管理費 20,000円/月

敷金 1ヶ月 / 礼金 -

お部屋の詳細を見る

この部屋でお問い合わせ

パークアクシス品川天王洲アイル 804

パークアクシス品川天王洲アイル 804

2LDK / 50.4㎡

賃料25.1万円

管理費 20,000円/月

敷金 1ヶ月 / 礼金 -

お部屋の詳細を見る

この部屋でお問い合わせ

パークアクシス品川天王洲アイル 809

パークアクシス品川天王洲アイル 809

2LDK / 60.53㎡

賃料29万円

管理費 20,000円/月

敷金 1ヶ月 / 礼金 -

お部屋の詳細を見る

この部屋でお問い合わせ

パークアクシス品川天王洲アイル 1206

パークアクシス品川天王洲アイル 1206

2LDK / 60.53㎡

賃料30.5万円

管理費 20,000円/月

敷金 1ヶ月 / 礼金 -

お部屋の詳細を見る

この部屋でお問い合わせ

パークアクシス品川天王洲アイル 103

パークアクシス品川天王洲アイル 103

1LDK / 29.12㎡

賃料13.6万円

管理費 12,000円/月

敷金 1ヶ月 / 礼金 -

お部屋の詳細を見る

この部屋でお問い合わせ

パークアクシス品川天王洲アイル 418

パークアクシス品川天王洲アイル 418

1DK / 29.12㎡

賃料14.2万円

管理費 12,000円/月

敷金 1ヶ月 / 礼金 -

お部屋の詳細を見る

この部屋でお問い合わせ

パークアクシス品川天王洲アイル 420

パークアクシス品川天王洲アイル 420

1LDK / 29.12㎡

賃料14.3万円

管理費 12,000円/月

敷金 1ヶ月 / 礼金 -

お部屋の詳細を見る

この部屋でお問い合わせ

パークアクシス品川天王洲アイル 416

パークアクシス品川天王洲アイル 416

1DK / 29.38㎡

賃料14.6万円

管理費 12,000円/月

敷金 1ヶ月 / 礼金 -

お部屋の詳細を見る

この部屋でお問い合わせ

パークアクシス品川天王洲アイル 1017

パークアクシス品川天王洲アイル 1017

1DK / 30.94㎡

賃料15.8万円

管理費 12,000円/月

敷金 1ヶ月 / 礼金 -

お部屋の詳細を見る

この部屋でお問い合わせ

パークアクシス品川天王洲アイル 917

パークアクシス品川天王洲アイル 917

2LDK / 58.24㎡

賃料28.9万円

管理費 20,000円/月

敷金 1ヶ月 / 礼金 -

お部屋の詳細を見る

この部屋でお問い合わせ

パークアクシス品川天王洲アイル 1015

パークアクシス品川天王洲アイル 1015

2LDK / 58.24㎡

賃料29.4万円

管理費 20,000円/月

敷金 1ヶ月 / 礼金 -

お部屋の詳細を見る

この部屋でお問い合わせ

パークアクシス品川天王洲アイル 429

パークアクシス品川天王洲アイル 429

1DK / 29.12㎡

賃料14.2万円

管理費 12,000円/月

敷金 1ヶ月 / 礼金 -

お部屋の詳細を見る

この部屋でお問い合わせ

パークアクシス品川天王洲アイル 424

パークアクシス品川天王洲アイル 424

1DK / 29.12㎡

賃料14.2万円

管理費 12,000円/月

敷金 1ヶ月 / 礼金 -

お部屋の詳細を見る

この部屋でお問い合わせ

パークアクシス品川天王洲アイル 427

パークアクシス品川天王洲アイル 427

1DK / 29.12㎡

賃料14.2万円

管理費 12,000円/月

敷金 1ヶ月 / 礼金 -

お部屋の詳細を見る

この部屋でお問い合わせ

パークアクシス品川天王洲アイル 530

パークアクシス品川天王洲アイル 530

1DK / 30.94㎡

賃料15.4万円

管理費 12,000円/月

敷金 1ヶ月 / 礼金 -

お部屋の詳細を見る

この部屋でお問い合わせ

パークアクシス品川天王洲アイル 629

パークアクシス品川天王洲アイル 629

1DK / 30.94㎡

賃料15.5万円

管理費 12,000円/月

敷金 1ヶ月 / 礼金 -

お部屋の詳細を見る

この部屋でお問い合わせ

パークアクシス品川天王洲アイル 405

パークアクシス品川天王洲アイル 405

1LDK / 38.4㎡

賃料19.6万円

管理費 12,000円/月

敷金 1ヶ月 / 礼金 -

お部屋の詳細を見る

この部屋でお問い合わせ

パークアクシス品川天王洲アイル 905

パークアクシス品川天王洲アイル 905

1LDK / 38.4㎡

賃料20.1万円

管理費 12,000円/月

敷金 1ヶ月 / 礼金 -

お部屋の詳細を見る

この部屋でお問い合わせ

パークアクシス品川天王洲アイル 303

パークアクシス品川天王洲アイル 303

2LDK / 50.4㎡

賃料24.4万円

管理費 20,000円/月

敷金 1ヶ月 / 礼金 -

お部屋の詳細を見る

この部屋でお問い合わせ

パークアクシス品川天王洲アイル 803

パークアクシス品川天王洲アイル 803

2LDK / 50.4㎡

賃料25.6万円

管理費 20,000円/月

敷金 1ヶ月 / 礼金 -

お部屋の詳細を見る

この部屋でお問い合わせ

パークアクシス品川天王洲アイル 401

パークアクシス品川天王洲アイル 401

2LDK / 62㎡

賃料28.5万円

管理費 20,000円/月

敷金 1ヶ月 / 礼金 -

お部屋の詳細を見る

この部屋でお問い合わせ

パークアクシス品川天王洲アイル 901

パークアクシス品川天王洲アイル 901

2LDK / 62㎡

賃料29.5万円

管理費 20,000円/月

敷金 1ヶ月 / 礼金 -

お部屋の詳細を見る

この部屋でお問い合わせ

パークアクシス品川天王洲アイル 1211

パークアクシス品川天王洲アイル 1211

3LDK / 62.65㎡

賃料33.5万円

管理費 20,000円/月

敷金 1ヶ月 / 礼金 -

お部屋の詳細を見る

この部屋でお問い合わせ

パークアクシス品川天王洲アイル 406

パークアクシス品川天王洲アイル 406

1LDK / 34.72㎡

賃料17.3万円

管理費 12,000円/月

敷金 1ヶ月 / 礼金 -

お部屋の詳細を見る

この部屋でお問い合わせ

パークアクシス品川天王洲アイル 1401

パークアクシス品川天王洲アイル 1401

1LDK / 36.89㎡

賃料20.2万円

管理費 12,000円/月

敷金 1ヶ月 / 礼金 -

お部屋の詳細を見る

この部屋でお問い合わせ

パークアクシス品川天王洲アイル 408

パークアクシス品川天王洲アイル 408

2LDK / 45.57㎡

賃料22.3万円

管理費 20,000円/月

敷金 1ヶ月 / 礼金 -

お部屋の詳細を見る

この部屋でお問い合わせ

パークアクシス品川天王洲アイル 402

パークアクシス品川天王洲アイル 402

2LDK / 50.4㎡

賃料24.3万円

管理費 20,000円/月

敷金 1ヶ月 / 礼金 -

お部屋の詳細を見る

この部屋でお問い合わせ

パークアクシス品川天王洲アイル 1404

パークアクシス品川天王洲アイル 1404

2LDK / 45.57㎡

賃料24.3万円

管理費 20,000円/月

敷金 1ヶ月 / 礼金 -

お部屋の詳細を見る

この部屋でお問い合わせ

パークアクシス品川天王洲アイル 421

パークアクシス品川天王洲アイル 421

1LDK / 29.12㎡

賃料13.9万円

管理費 12,000円/月

敷金 1ヶ月 / 礼金 -

お部屋の詳細を見る

この部屋でお問い合わせ

パークアクシス品川天王洲アイル 317

パークアクシス品川天王洲アイル 317

1DK / 29.12㎡

賃料14.1万円

管理費 12,000円/月

敷金 1ヶ月 / 礼金 -

お部屋の詳細を見る

この部屋でお問い合わせ

パークアクシス品川天王洲アイル 422

パークアクシス品川天王洲アイル 422

1DK / 29.12㎡

賃料14.2万円

管理費 12,000円/月

敷金 1ヶ月 / 礼金 -

お部屋の詳細を見る

この部屋でお問い合わせ

パークアクシス品川天王洲アイル 417

パークアクシス品川天王洲アイル 417

1DK / 29.12㎡

賃料14.4万円

管理費 12,000円/月

敷金 1ヶ月 / 礼金 -

お部屋の詳細を見る

この部屋でお問い合わせ

パークアクシス品川天王洲アイル 617

パークアクシス品川天王洲アイル 617

1DK / 29.12㎡

賃料14.5万円

管理費 12,000円/月

敷金 1ヶ月 / 礼金 -

お部屋の詳細を見る

この部屋でお問い合わせ

パークアクシス品川天王洲アイル 625

パークアクシス品川天王洲アイル 625

1DK / 29.12㎡

賃料14.5万円

管理費 12,000円/月

敷金 1ヶ月 / 礼金 -

お部屋の詳細を見る

この部屋でお問い合わせ

パークアクシス品川天王洲アイル 621

パークアクシス品川天王洲アイル 621

1LDK / 29.12㎡

賃料14.6万円

管理費 12,000円/月

敷金 1ヶ月 / 礼金 -

お部屋の詳細を見る

この部屋でお問い合わせ

パークアクシス品川天王洲アイル 623

パークアクシス品川天王洲アイル 623

1DK / 29.12㎡

賃料14.6万円

管理費 12,000円/月

敷金 1ヶ月 / 礼金 -

お部屋の詳細を見る

この部屋でお問い合わせ

パークアクシス品川天王洲アイル 614

パークアクシス品川天王洲アイル 614

1DK / 29.38㎡

賃料14.9万円

管理費 12,000円/月

敷金 1ヶ月 / 礼金 -

お部屋の詳細を見る

この部屋でお問い合わせ

パークアクシス品川天王洲アイル 407

パークアクシス品川天王洲アイル 407

2LDK / 45.57㎡

賃料22万円

管理費 20,000円/月

敷金 1ヶ月 / 礼金 -

お部屋の詳細を見る

この部屋でお問い合わせ

パークアクシス品川天王洲アイル 413

パークアクシス品川天王洲アイル 413

2DK / 45.57㎡

賃料22.2万円

管理費 15,000円/月

敷金 1ヶ月 / 礼金 -

お部屋の詳細を見る

この部屋でお問い合わせ

パークアクシス品川天王洲アイル 412

パークアクシス品川天王洲アイル 412

2LDK / 45.57㎡

賃料22.8万円

管理費 20,000円/月

敷金 1ヶ月 / 礼金 -

お部屋の詳細を見る

この部屋でお問い合わせ

パークアクシス品川天王洲アイル 1101

パークアクシス品川天王洲アイル 1101

2LDK / 50.4㎡

賃料27.1万円

管理費 20,000円/月

敷金 1ヶ月 / 礼金 -

お部屋の詳細を見る

この部屋でお問い合わせ

現在閲覧中

パークアクシス品川天王洲アイル 1201

パークアクシス品川天王洲アイル 1201

2LDK / 56.1㎡

賃料28.3万円

管理費 20,000円/月

敷金 1ヶ月 / 礼金 -

お部屋の詳細を見る

この部屋でお問い合わせ

パークアクシス品川天王洲アイル 816

パークアクシス品川天王洲アイル 816

2LDK / 58.24㎡

賃料28.4万円

管理費 20,000円/月

敷金 1ヶ月 / 礼金 -

お部屋の詳細を見る

この部屋でお問い合わせ