以下のボタンから該当する内容をご選択ください。
トレステージ目黒 1401 のお問い合わせは、住まいの情報館まで
建物管理番号:
内見のご予約について
×
住まいの情報館
総合管理部 東京都港区東新橋1-9-2 汐留住友ビル
トレステージ目黒 1401 の賃料・その他費用について
賃料 | 24万円 |
---|
管理費 | なし |
---|---|
共益費 | |
雑費 |
敷金 | 1ヶ月 |
---|---|
礼金 | 1ヶ月 |
敷引 | - |
鍵交換代等 | |
---|---|
保証金 | - |
保証金償却 |
その他一時金 | |
---|---|
ランニングコスト |
トレステージ目黒 1401 の物件概要
物件種別 | マンション |
---|---|
物件名/部屋番号 | トレステージ目黒 1401 |
所在地 | 東京都目黒区下目黒2丁目22-11 |
交通 |
山手線 目黒駅 徒歩 9分 |
築年月 | 2004年02月 |
---|---|
建物構造 | 鉄骨鉄筋造 |
建物階建/所在階 | 14階/18階建(地下2階) |
総戸数 | - |
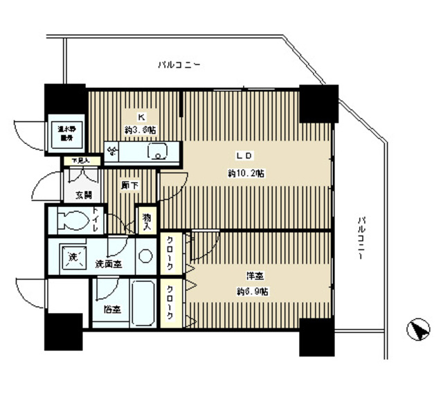
間取り | 1LDK |
間取り内訳 | 1LDK 開口向き南東 |
専有面積 | 50.35㎡ |
---|---|
バルコニー | |
主要採光面 | |
駐車場 | - |
バイク置場 | |
駐輪場 |
特記事項 | |
---|---|
設備 | エアコン/室内洗濯機置場/バス・トイレ別/浴室乾燥機/システムキッチン/バルコニー/フローリング/オートロック/エレベーター/宅配ボックス/バイク置き場あり/インターネット接続可/インターネット(CATV)/BSアンテナ/CSアンテナ/CATV/管理人(日勤) |
温泉 | |
リフォーム履歴 | |
リノベーション履歴 | |
周辺環境 | - |
備考 | ■ACクリーニング:借主負担(15,000円‐25,000円/台)■駐輪場1台まで(区画指定無し)、普通借家[契約期間]24ヶ月 |
現況 | 空室 |
---|---|
入居日 | 2025/10下 |
取引態様 | 代理 |
賃貸区分 | マンション |
---|---|
契約期間 | |
更新料 | 新賃料の1ヶ月 |
入居条件 | 楽器相談(ピアノ可)/事務所不可 |
---|---|
フリーレント | |
保険等加入 | 要 |
管理方式 | |
賃貸保証 | |
設備保証 | |
クレジットカード決済 | |
一括型共同住宅 | |
物件番号 | 271774 |
情報更新日 | 2025-10-01 |
---|
公開満了日 |
---|
トレステージ目黒 の地図
東京都目黒区下目黒2丁目22-11 周辺の地図
※地図の場所は、物件の住所情報を基に自動表示しております。実際の物件所在地とは異なる場合がございますので、正確な場所については不動産会社までお問い合わせください。
トレステージ目黒 のお問い合わせは、住まいの情報館まで
建物管理番号:
住まいの情報館
総合管理部 東京都港区東新橋1-9-2 汐留住友ビル
賃貸物件のご相談は住まいの情報館へ。IT重説も可能です。土・日営業。
担当店舗 | 株式会社ダーウィンプラス |
---|---|
Tel/Fax | Tel: 03-5565-7771 / Fax: 03-5148-7771 |
所在地 | 〒104-0061 東京都中央区銀座7丁目15-5 |
アクセス | 東京メトロ日比谷線 / 東銀座駅 徒歩5分 |
営業時間 | 10:00~19:00 / 水曜定休 |
免許番号 | 国土交通大臣免許(2)第8738号 |
所属団体名 | 全日本不動産協会 |
トレステージ目黒 の他の空室
トレステージ目黒 505
1LDK / 55.02㎡
賃料25.4万円
管理費 なし
敷金 1ヶ月 / 礼金 1ヶ月
トレステージ目黒 1401
1LDK / 50.35㎡
賃料24万円
管理費 なし
敷金 1ヶ月 / 礼金 1ヶ月
現在閲覧中
トレステージ目黒 1404
2LDK / 66.81㎡
賃料31.3万円
管理費 なし
敷金 1ヶ月 / 礼金 1ヶ月
トレステージ目黒 1703
2LDK / 103.5㎡
賃料46.9万円
管理費 なし
敷金 1ヶ月 / 礼金 1ヶ月